深圳
关闭
G
广州
S
深圳
首页
新房
找楼盘
团购
帮你找房
地图找房
资讯
楼盘动态
购房指南
房产资讯
楼盘导购
房产宝典
房产百科
优惠活动
咨询电话:4008862806
登录
/
注册
退出
您的位置:
首页
>
新房
> 特发·学府朗园
手机看房
更方便
特发·学府朗园
在售
高性价比
品牌地产
康养房
教育地产
宜居生态
公园地产
养生社区
售楼处电话
400-886-2806
楼盘主页
楼盘动态
在售户型
楼盘相册
楼盘信息
楼盘问答
价格走势
楼栋信息
楼盘点评
全部(
6
)
三居室(
3
)
四居室(
2
)
五居室(
1
)
←
5室2厅2卫1厨
在售
143.00㎡
4室2厅2卫1厨
在售
114.00㎡
4室2厅2卫1厨
在售
114.00㎡
3室2厅2卫1厨
在售
97.00㎡
3室2厅2卫1厨
在售
88.00㎡
3室2厅2卫1厨
在售
88.00㎡
→
户型图(
1
/
1
)
查看大图
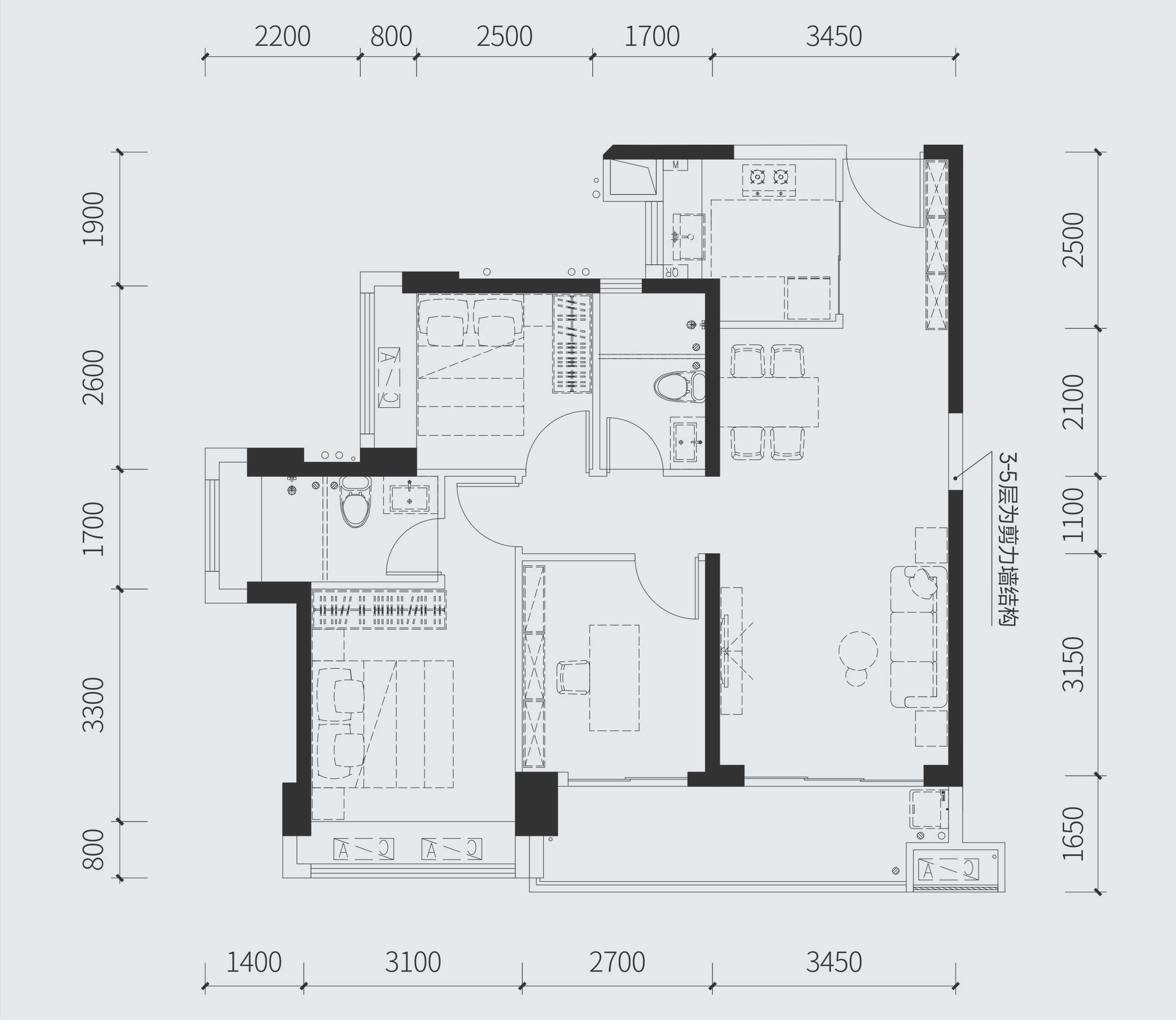
3室2厅2卫1厨
在售
户 型
3室2厅2卫1厨
建筑面积
97.00㎡
参考价格
34000
元/㎡
获取最新价格变动
参考总价
330
万元/套
项目特色
户型解析
售楼处咨询电话
400-886-2806
免费通话
3室2厅2卫1厨(3室2厅2卫1厨)