咨询电话:4008862806
您的位置: 首页 > 新房 > 卓能雅苑

卓能雅苑

在售 特价优惠 高性价比

售楼处电话

400-886-2806

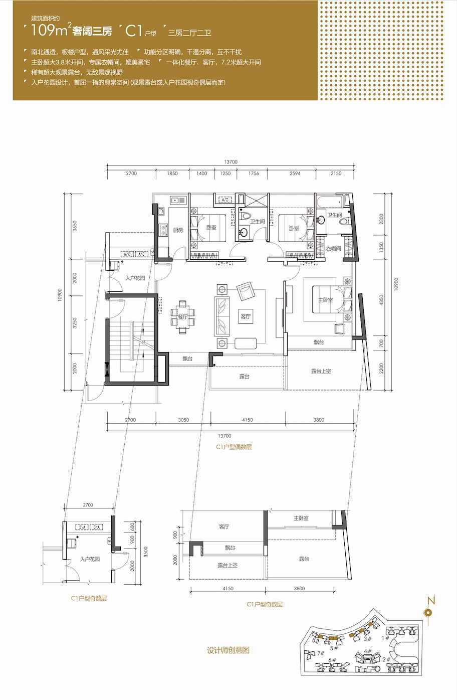
户型图(1/1

查看大图

  • 3室2厅2卫0厨

  • 109.00㎡

  • 458万元/套
售楼处咨询电话400-886-2806